Пред.
 |
Просмотр работы: |
След.
 |
30 мая ’2017
10:38
Просмотров:
17815

ПОЯСНЕНИЯ К ПРОЕКТУ
Автономного 15 квартирного жилого дома и
«Хутора комплексной застройки» с автоматизованной мини-фермой и цехом переработки молока для нужд жителей хутора
(Не считались необходимым при составлении бизнес-плана, Программы и Концепции целевой Программы)
1. Принципы отопления и принципиальное намерение использования бутылок из-под одеколона «Шипр» (из которых откачано 1 куб.м воздуха) в конструкциях панелей, которыми одевается несущая конструкция дома, мини-завода (цеха) и мини-фермы:
- Отопление инфракрасное низкочастотное электрическое медленного прогрева помещения с периодическим действием и терморегулированием при безопасном уровне постоянного напряжения на нагревательном элементе имеет ресурс работы, равный сроку выносливости здания,
- Отопление требует минимизации теплопотерь помещений, тем более, что помещения имеют произвольную планировку, и следовательно с экономической и экологической точек зрения используются дешевые и широко распространенные строительные материалы, в производстве же панелей учитываются положительные отзывы отдельных застройщиков, которые, как и планируется, использовали вакуумированные и закупоренные бутылки от одеколона «Шипр», что позволяют использовать промышленные образцы комплектующих для возведения аналогичных зданий и хуторов как в Украине, так и на Севере или в Африке (при экспорте технологии) (защищено ПУ №40183),
- Положительная практика использования аналогичных технологий отопления использовалась в РВСН (в Украине) и до сих пор используется в России (из-за ликвидации ЯО в Украине в состоянии банкротства ОАО «Углекомпозит), в то время как активно работают на рынке Украины РУП «Светлогорскхимволокно» и аналогичные поставщики из США,
- Обеспечив стабильной работой и сбытом мелитопольских двигателей перед машиностроителями транспорта, в том числе сельскохозяйственного, откроется широкое поле деятельности по созданию автономных электрических и гибридных моделей техники.
2. Процесс восстановления родовой составляющей в украинской семье будущего - путь медленный и добровольный, но без наличия положительной альтернативы нет будущего у села, как бы плотно ни было оно застроено: по мере освоения помещений «хуторов» уйдут в небытие нынешние «чураки» и освободится земля для садов и собственных (приусадебных) угодий.
3. Уменьшение нагрузки на существующие электрические сети откроет возможность электрическим транспортным перевозкам сельскими мини-троллейбусами между разбросанными участками села и пригородными троллейбусами-внедорожниками между населенными пунктами и городами.
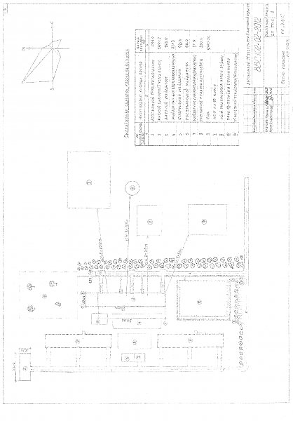
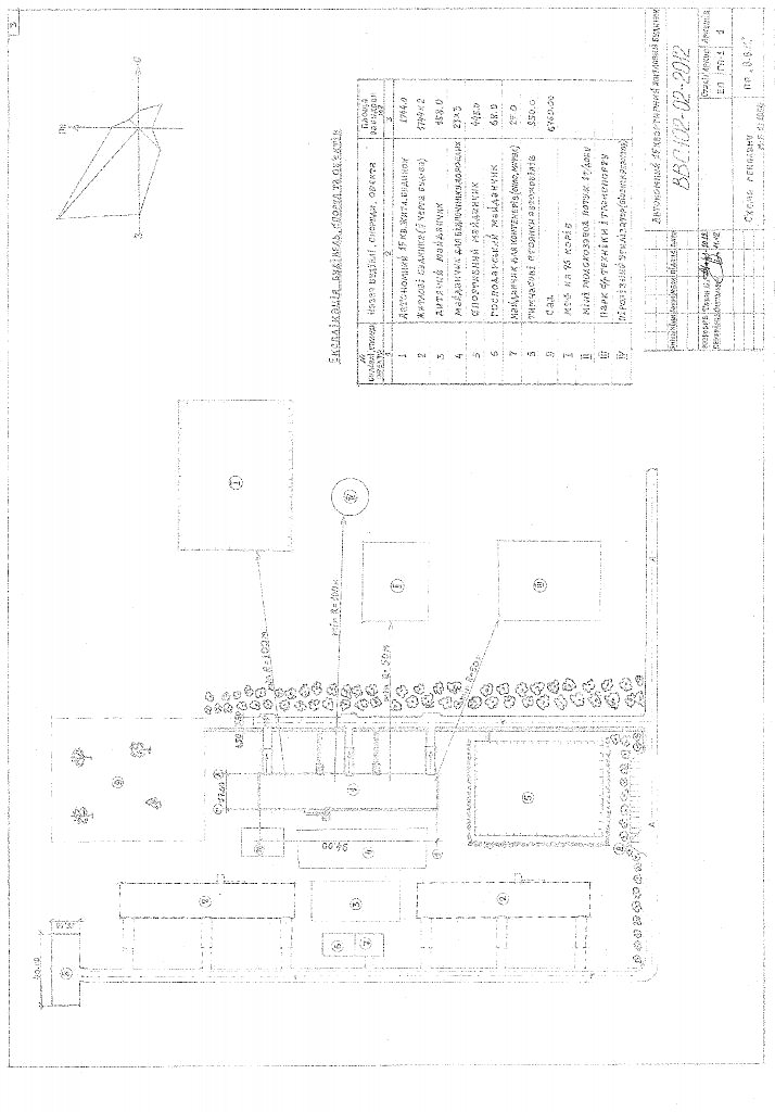
4. К сегодняшнему составу монополистов среди производителей перерабатывающих мини-молокозаводов в лице России и Израиля, с их энергозатратным оборудованием, с внедрением «хуторов комплексной застройки» на мировой рынок выйдут мини-заводы украинских производителей с более высокой энергоэффективностью (защищено ПУ № 79157).
5. По мере проработки проектов автономных многоквартирных домов и «хуторов» их возведение ожидается и в «сельских районах» крупных украинских городов: Днепропетровск, Кривой Рог и др., будет создана «разнородная» промышленность строительных конструкций и техники для быстрого серийного возведения зданий.
6. Новые рабочие места в промышленности будут созданы как в городах, так и по месту жительства, что создает основы децентрализации трудовых ресурсов (где для работы привлекается как молодёжь, так и пожилые люди и те, кто уже получают пенсию).
РЕЗЮМЕ
комплексної соціально-економічної програми «Новітнє село»
Сучасний уклад сім’ї утворився наприкінці XVIII століття з набуттям сталого розвитку мануфактурних виробництв. Потреба у вільній робочій силі сформувала поняття квартири та закріпила розрив сімейних зв’язків. Сучасна світова криза – є кризою перевиробництва, кризою моралі, кризою сімейних відносин. Десятиліття становлення нової України з очікуванням привабливих інвестицій показали неспроможність руху вперед без вирішення проблем села, проблеми батьківства та виховання молоді. Сучасний розвиток технологій дозволяє докорінно змінити уклад життя на селі через створення умов комфортного проживання в одній квартирі чотирьох поколінь. Існуюча на Заході тенденція до котеджного способу поселень, яка всліпу копіюється забудовниками довкола столиці, обумовлена великою різницею у доходах і ніде не застосовується до більшості населення. Через високу щільність населення в Україні вже сьогодні деякі села розкидані на десятки кілометрів, що створює значні транспортні та комунальні проблеми.
Практика будівництва квартир в багатоповерхівках на селі часів СРСР не прижилася через повну невирішеність соціально-побутових умов сім’ї та якості проживання. Створення великих сільсько-господарських комплесів та виробництв має позитивну тенденцію розвитку. Та досвід сусідів з розвитку молочних міні-ферм та міні-заводів дозволяє, за рахунок впровадження енергозберігаючих заходів, не тільки забезпечити мешканців села повним асортиментом молокопродуктів, але й реалізовувати надлишки завдяки нижчій собівартості.
Серійне впровадження на селі комплексної хутірської забудови багатоквартирними автономними будинками в єдиній енергомережі з молочною міні-фермою на 50 дійних корів і міні-молокозаводом повного асортименту продукції з однієї тони молока, забезпечить суттєво вищу якість життя та умови добровільного з‘єднання родин. Хутірська забудова забезпечить вирішення транспортної проблеми. Закладені у проект принципи енергозбереження, закріплені патентом України №40183 «Комплексна система забезпечення побутових і технічних потреб багатоквартирного автономного будинку», в поєднання з «ноу-хау» щодо теплової ефективності будівлі, забезпечують найкращу ефективність використання нетрадиційних джерел електроенергії і повну відмову від використання газу. Впровадження при комплексній забудові біотехнологій забезпечить високий рівень екології довкілля і гармонізацію життєвого середовища. Все це потребує розвитку машинобудівної галузі промисловості України й областей для виробництва низьковольтного силового електронного обладнання, комутуючих пристроїв та перетворювачів, нетрадиційних генераторів та джерел електроенергії, високоефективного кухонного обладнання та холодильної техніки на менш витратних принципах дії, широкого залучення для побуту вуглетканин та вуглепластиків, технологією виготовлення яких володіє Україна.
Бізнес-план програми «Новітнє село – через децентралізацію трудових ресурсів регіону» розроблено з метою освоєння конкурентоздатної продукції за рахунок залучення інвестиційних коштів держави, банків, організацій, населення для впровадження на селі серійної хутірської забудови багатоквартирними автономними будинками у комплексі із молочними міні-фермою і міні-заводом у єдиній енергосистемі. В основі концепції будівництва – монолітно-каркасне зведення автономних багатоповерхових будинків для сімей чотирьох поколінь із використанням новітніх систем електричного опалювання, нагрівальних приладів з композитних матеріалів, технології теплоефективності будинку, утилізації викидів та відходів, максимального залучення нетрадиційних джерел електроенергії.
Мінімізація енергоспоживання багатоквартирним автономним будинком, міні-фермою та міні-заводом досягається використанням нагрівачів з вітчизняної вуглетканини для системи опалювання та системи гарячого водопостачання, вуглепластика для електроплит та духовок, а також пристроїв автоматичного включення/виключення освітлення, перетворювачів і приводів високого коефіцієнта корисної дії.
Створення умов комфортного проживання для сімей чотирьох поколінь та притоку в село міського населення на постійне проживання дозволить покращити демографію, мораль і культуру, а через створення у промисловості великої кількості робочих місць і вирішення питань вільного переміщення в межах регіону трудових ресурсів ліквідувати існуючу диспропорцію розвитку територій.
Голосование:
Суммарный балл: 10
Проголосовало пользователей: 1
Балл суточного голосования: 0
Проголосовало пользователей: 0
Голосовать могут только зарегистрированные пользователи
Вас также могут заинтересовать работы:
Отзывы:
Оставлять отзывы могут только зарегистрированные пользователи